ЖИЛОЙ ДОМ ПО УЛИЦЕ ОКТЯБРЬСКАЯ
Жилой дом по ул. Октябрьская, 64 в Зареченском районе г. Тулы
Жилой дом по ул. Октябрьская
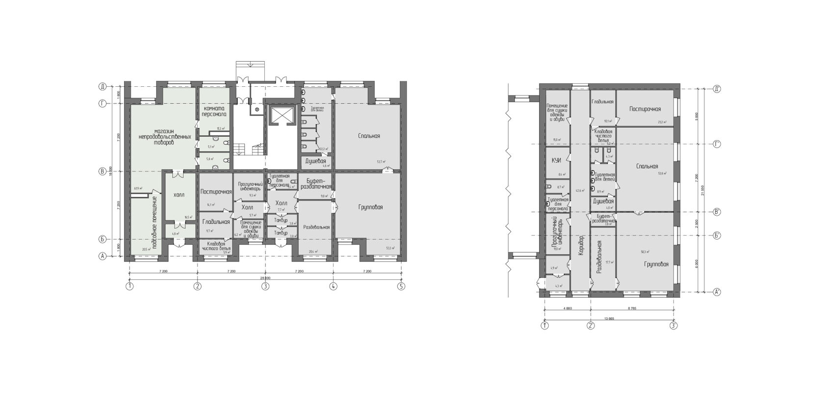
План дошкольного образовательного учреждения
План общественных пространств
Авторы архитектурной концепции:
Архитектурная мастерская ООО «А.Клепанов.А-С-Д»
Расположение: г. Тула
Статус: эскизный проект
Год разработки проекта: 2011
Фасады
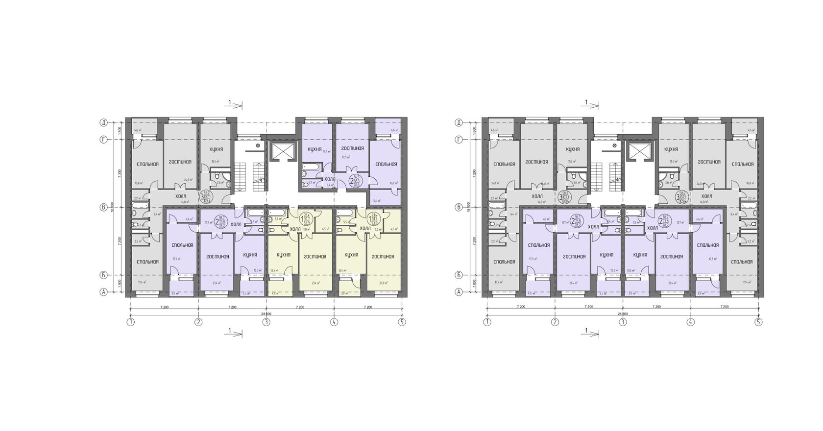
Планы типовых этажей торцевых блок-секций
План подземного гаража
© ООО «А.Клепанов.А-С-Д». Все права защищены.
Андрей Клепанов.Архитектура-Строительство-Дизайн
г. Тула, проспект Ленина 57, 300001, офис 210, офис 208
klepan08@inbox.ru
г. Москва, Ленинградский проспект 13, 125040, строение 1А, офис 58
klepan08msk@inbox.ru