RESIDENTIAL BUILDING
ON OKTYABRSKAYA STREET
Residential building on the Oktyabrskaya street 64 in the Zarechensky district of Tula
Residential building on the Oktyabrskaya street
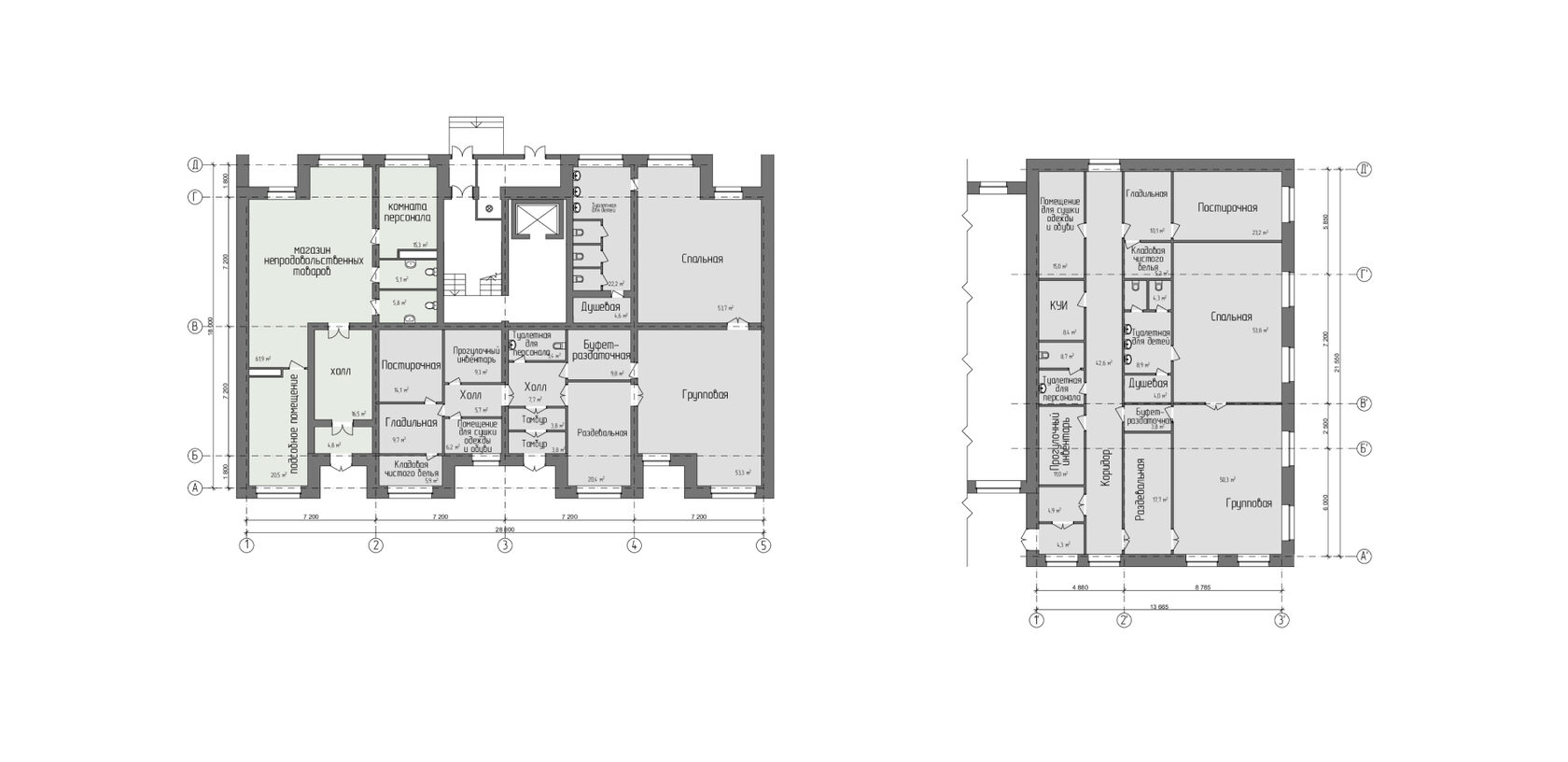
Preschool educational institution plan
Public space plan
The authors of the architectural concept:
Architectural company LLC "A.Klepanov.A-C-D"
Location: Tula
Status: preliminary design
Project development year: 2011
Facades
Underground garage plan
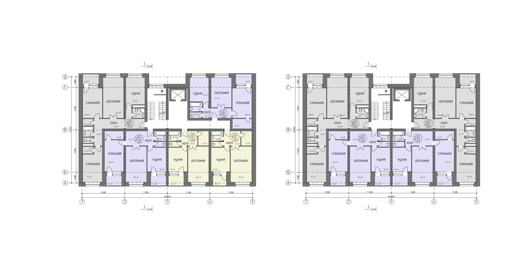
Plans of typical floors of end block sections
© LLC "A.Klepanov.A-C-D". All rights reserved.
ANDREI KLEPANOV. ARCHITECTURE-CONSTRUCTION-DESIGN
Tula, Prospekt Lenina 57, 300001, office 210, office 208
klepan08@inbox.ru
Moscow, Leningradsky Prospekt 13, 125040, building 1 A, office 58
klepan08msk@inbox.ru