ЖИЛЫЕ ДОМА.
КРАСИНА-ГАЛКИНА-ГОНЧАРОВА
Многоквартирные жилые дома со встроенными нежилыми помещениями на территории, ограниченной улицами Красина, Гончарова, Галкина в Зареченском районе города Тулы
Вид на жилой комплекс
Компоновочная схема
Авторы архитектурной концепции:
Архитектурная мастерская ООО «А.Клепанов.А-С-Д»
Расположение: г. Тула
Статус: эскизный проект
Год разработки проекта: 2008
Мастерплан
Общий план
План кровли
План первого этажа
План техподполья
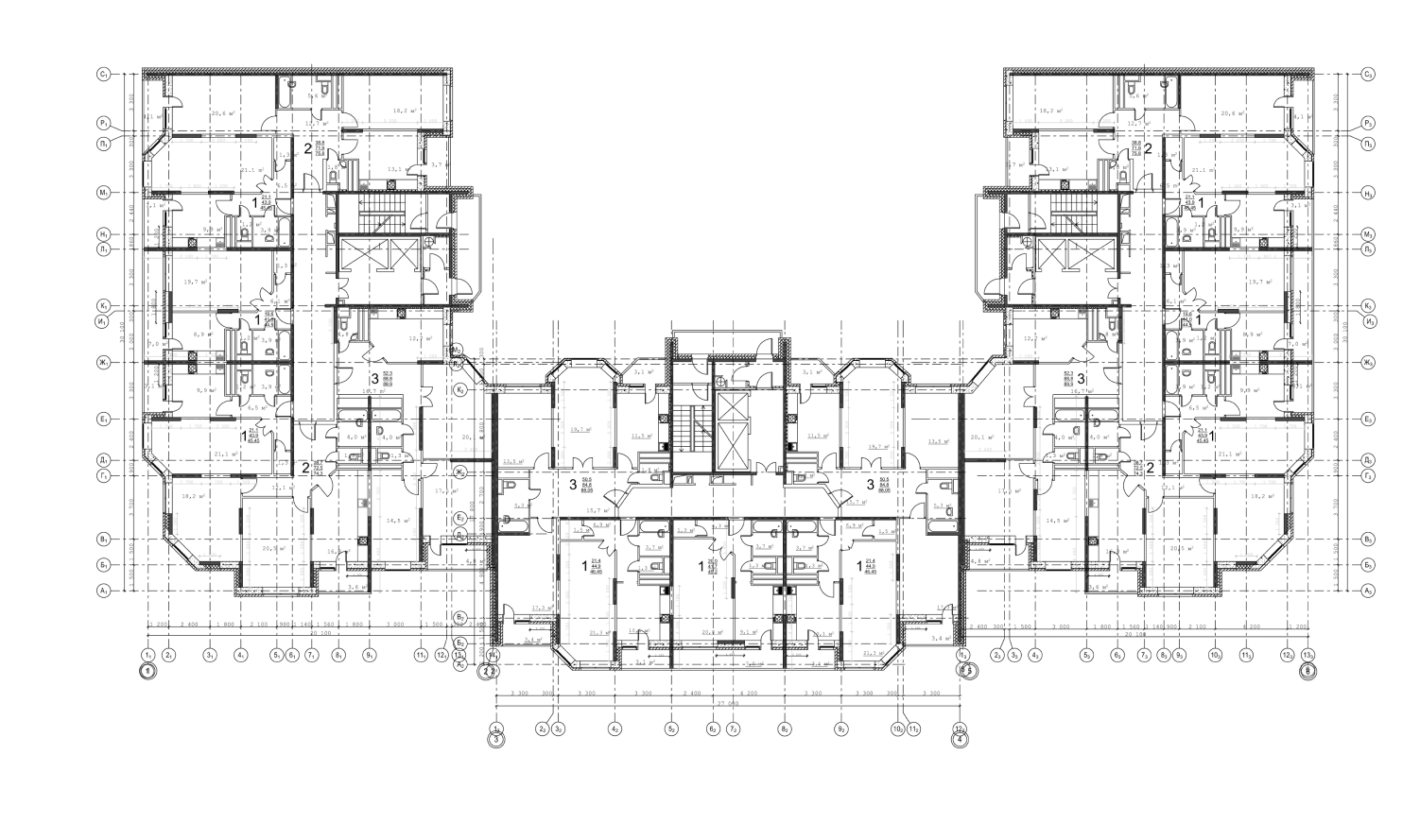
План типового этажа
План чердачного этажа
© ООО «А.Клепанов.А-С-Д». Все права защищены.
Андрей Клепанов.Архитектура-Строительство-Дизайн
г. Тула, проспект Ленина 57, 300001, офис 210, офис 208
klepan08@inbox.ru
г. Москва, Ленинградский проспект 13, 125040, строение 1А, офис 58
klepan08msk@inbox.ru