RESIDENTIAL BUILDINGS.
KRASINA-GALKINA-GONCHAROVA
Multi-apartment residential buildings with built-in non-residential premises on the territory, bounded by Krasina, Goncharova, Galkina streets in the Zarechensky district of the city of Tula
Residential buildings. Krasina-Galkina-Goncharova
Layout diagram
The authors of the architectural concept:
Architectural company LLC "A.Klepanov.A-C-D"
Location: Tula
Status: preliminary design
Project development year: 2008
Masterplan
Overall plan
Roof plan
Ground floor plan
Technical underground plan
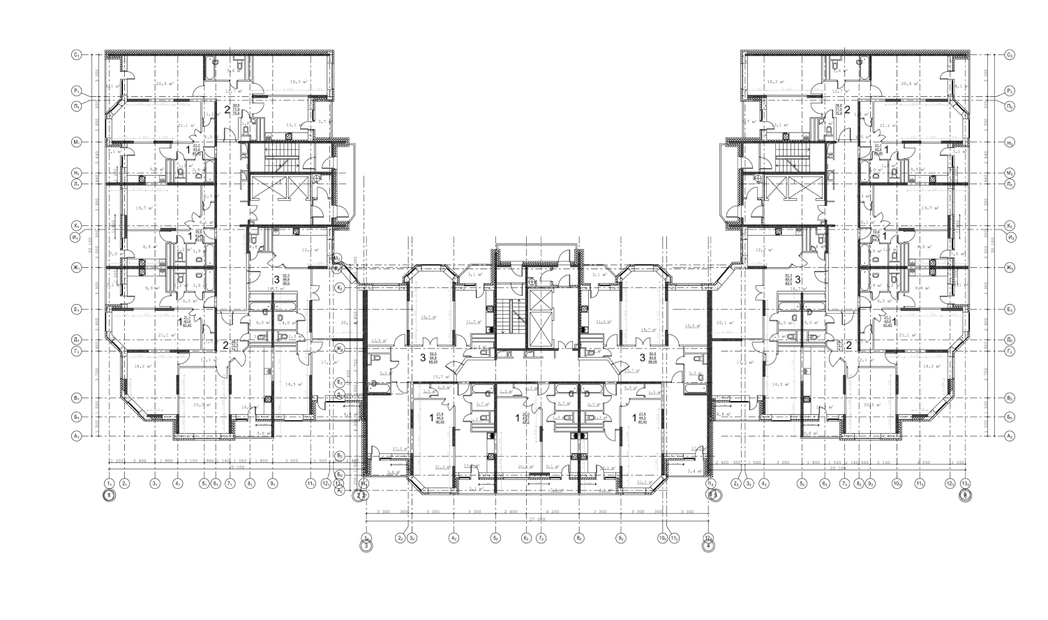
Typical floor plan
Attic floor plan
© LLC "A.Klepanov.A-C-D". All rights reserved.
ANDREI KLEPANOV. ARCHITECTURE-CONSTRUCTION-DESIGN
Tula, Prospekt Lenina 57, 300001, office 210, office 208
klepan08@inbox.ru
Moscow, Leningradsky Prospekt 13, 125040, building 1 A, office 58
klepan08msk@inbox.ru